top of page
Kitchen Remodeling Cerritos
ADU / Garage Conversion
CALIFORNIA HAS PASSED A NEW LAW AND
YOU WON'T BELIEVE IT!

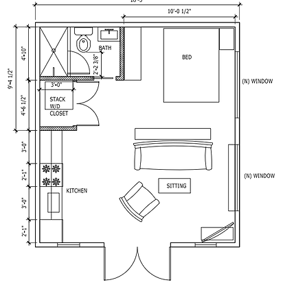
What is an ADU?
An Accessory Dwelling Unit (ADU) is a residential unit that can be added to a lot
with an existing single-family home. ADUs can be detached (a separate building in
a backyard), attached to or part of the primary residence, or a garage conversion.
ADUs are independent rental units that have their own kitchens, bathrooms, living
areas, and entrances.

Turn Your Garage Into
MONEY $$$

" Our mortgage payment is now LESS than a $1000 a Month... That is a REAL life changer..."
CONVERT YOUR EXISTING
GARAGE INTO A GUEST HOUSE
CALIFORNIA PASSED A LAW THAT NOW REQUIRES ALL BUILDING DEPARTMENTS TO ALLOW ALL SINGLE FAMILY RESIDENCES TO BE ABLE TO EITHER CONVERT THEIR EXISTING GARAGE INTO A GUEST HOUSE OR TO BUILD A NEW GUEST HOUSE ON THEIR PROPERTIES
$1880.00
MONTHLY RENT
IN ORANGE
$2260.00
MONTHLY RENT
IN NEWPORT BEACH


NOW MORE THAN EVER EVERYONE CAN BECOME REAL ESTATE INVESTORS.



CONTACT US FOR A FREE ESTIMATE
(949) 566-8337
3943 IRVINE BLVD. #114, IRVINE CA 92602
bottom of page
